Описание модели O 5.8_220
Пластинчато-роторный насос Becker O 5.8_220 - это компактная модель вакуумного масляного насоса работающая с производительностью до 8 м3/час и глубиной вакуума 2 мбар. Насос рассчитан прежде всего на работу в упаковочных машинах на пищевом производстве. Модель оборудована газобалластным устройством. Входной патрубок 17 мм с присоединением под шланг. Рабочий объем вакуумного масла 0,25 литра.
На насосе установлен трехфазный электродвигатель мощностью 0,35 кВт, 2750 об/мин.
Насос работает с обязательными остановками (8,5 минут работы и не менее 1,5 минут перерыва). Это связано с особенностями системы циркуляции смазки.
Уровень шума модели 60 дБ.
Модель может оснащаться фильтром на входе (опция).
Ограничения по эксплуатации
- Температура воздуха должна быть от +5 до +40 ºС.
- Относительная влажность воздуха не более 90 %.
- Воздух не должен содержать примесей агрессивных или взрывоопасных газов.
Что входит в комплект поставки
- Насос.
- Инструкция.
- Обратный клапан (опционально).
- Газобалластное устройство (опционально).
- Отдельный гарантийный талон не прилагается (гарантия по накладной или товарному чеку 12 месяцев со дня продажи).
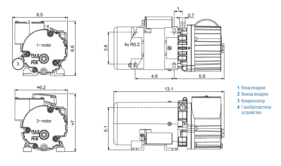
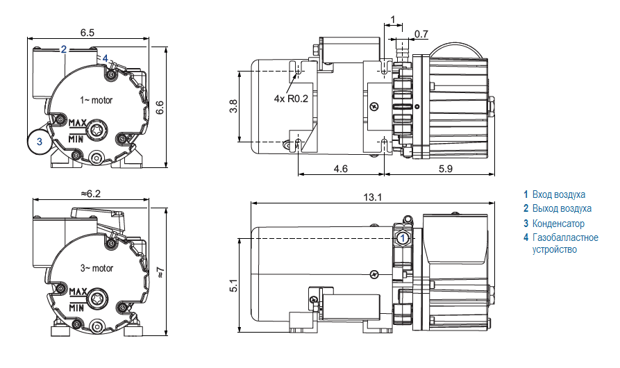
Габаритный чертеж насоса Becker O 5.8_220
Кривые производительности
Видео
Почему важно прогревать насос в начале работы
Влияет ли глушитель на уровень вакуума в вакуумных насосах?
Вакуумные фильтры: как правильно подобрать?
У нас пока нет отзывов по этой модели.
В настоящее время никто вопросов не задавал. Вы можете быть первым.




































_1.jpg)




























































































































































































































































Гарантия 12 мес.