Описание модели MXV 25-310
Насос Calpeda MXV 25-310 - это вертикальный многоступенчатый насос высокого давления производства итальянского завода Calpeda. Насос имеет 10 рабочих ступеней. Фланцевые патрубки насоса одинакового диаметра 25 мм, расположены на одной линии. Корпус насоса и все внутренние элементы изготовлены из хромоникелевой нержавеющей стали AISI 304 (вал AISI 303). Модель предназначена для перекачивания чистой жидкости без твердых частиц, подходящей для нержавеющей стали. Применяется в промышленной, коммунальной, сельскохозяйственной и бытовой сфере.
Производительность многорядного насоса MXV 25-310 колеблется от 1 до 4,5 м3/час (от 16,6 до 75 л/мин.), напор до 114 метров водяного столба. Оптимальная рабочая точка производительности 3,0 м3/ч (50 литров в минуту) при давлении 78,1 метра водяного столба. КПД насоса в указанной точке составляет около 40 %.
Насос оборудован трехфазным двигателем 380/220 В, 50 Гц, 2900 об/мин (2Р), номинальная мощность двигателя 1,5 кВт.
Ограничения по эксплуатации
- Температура перекачиваемой воды (или иной среды) от -15°С до +110°С (для серии MXV-B до +90 °С).
- Температура воздуха вокруг насоса не более 40°С.
- Давление внутри насоса, максимальное: 25 атмосфер.
Другие исполнения по запросу
- Для работы с другими напряжениями.
- С защитным устройством IP 55.
- Особые механические уплотнения.
- Уплотнительные кольца из витона.
- Для работы с другими температурами.
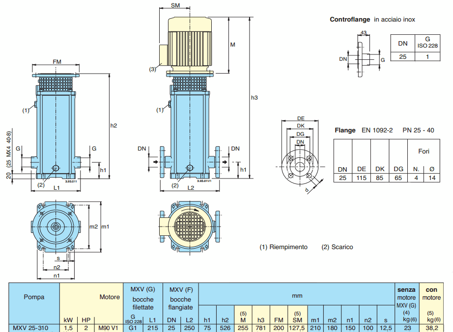
Габаритный чертеж насоса Calpeda MXV 25-310
Кривые производительности
У нас пока нет отзывов по этой модели.
В настоящее время никто вопросов не задавал. Вы можете быть первым.




































_1.jpg)




























































































































































































































































Гарантия 36 мес.