Описание модели MXV 40-908
Насос Calpeda MXV 40-908 - это вертикальный многоступенчатый насос высокого давления производства итальянского завода Calpeda. Насос имеет 8 рабочих ступеней. Фланцевые патрубки насоса одинакового диаметра 40 мм, расположены на одной линии. Корпус насоса и все внутренние элементы изготовлены из хромоникелевой нержавеющей стали AISI 304 (вал AISI 303). Модель предназначена для перекачивания чистой жидкости без твердых частиц, подходящей для нержавеющей стали. Применяется в промышленной, коммунальной, сельскохозяйственной и бытовой сфере.
Производительность насоса от 5,0 до 13,0 м3/час (от 83,3 до 216,6 л/мин.), напор до 87 метров водяного столба. Оптимальная рабочая точка производительности 9,0 м3/ч (150 литров в минуту) при давлении 74,2 метра водяного столба. КПД насоса в указанной точке составляет около 60 %.
Насос оборудован трехфазным двигателем 380 В, 50 Гц, 2900 об/мин (2Р), номинальная мощность двигателя 3,0 кВт.
Звуковое давление насоса находится с пределах санитарных норм и составляет < 69 дБ (А).
Ограничения по эксплуатации
- Температура перекачиваемой воды (или иной среды) от -15°С до +110°С (для серии MXV-B до +90 °С).
- Температура воздуха вокруг насоса не более 40°С.
- Давление внутри насоса, максимальное: 25 атмосфер.
Другие исполнения по запросу
- Для работы с другими напряжениями.
- С защитным устройством IP 55.
- Особые механические уплотнения.
- Уплотнительные кольца из витона.
- Для работы с другими температурами.
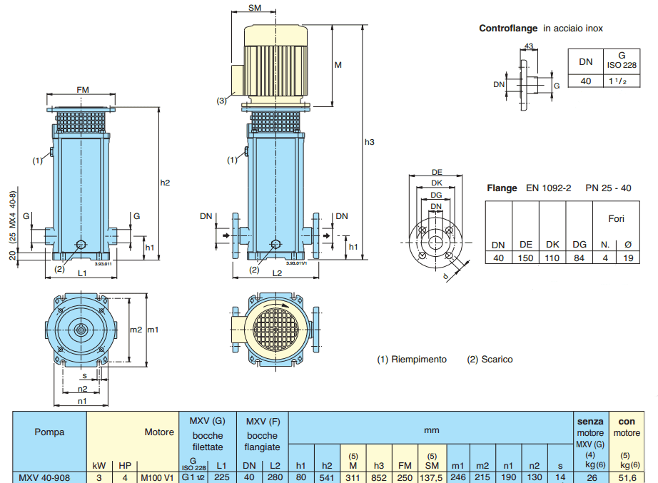
Габаритный чертеж насоса Calpeda MXV 40-908
Кривые производительности
У нас пока нет отзывов по этой модели.
В настоящее время никто вопросов не задавал. Вы можете быть первым.




































_1.jpg)




























































































































































































































































Гарантия 36 мес.