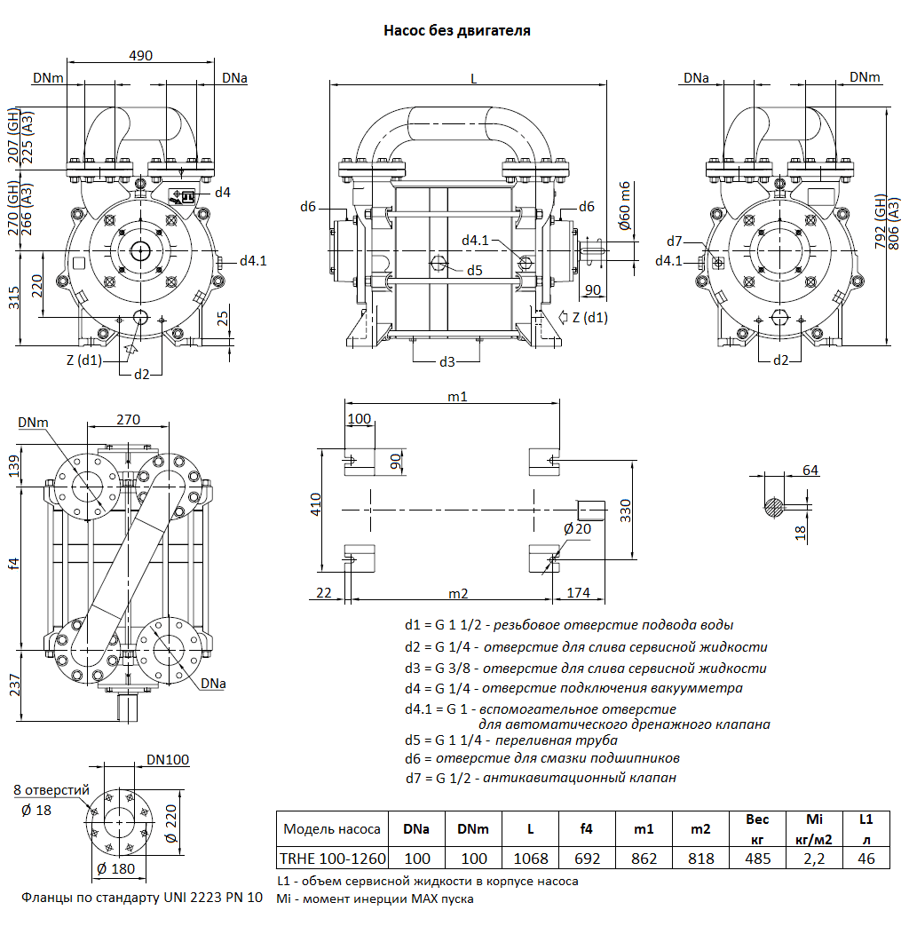
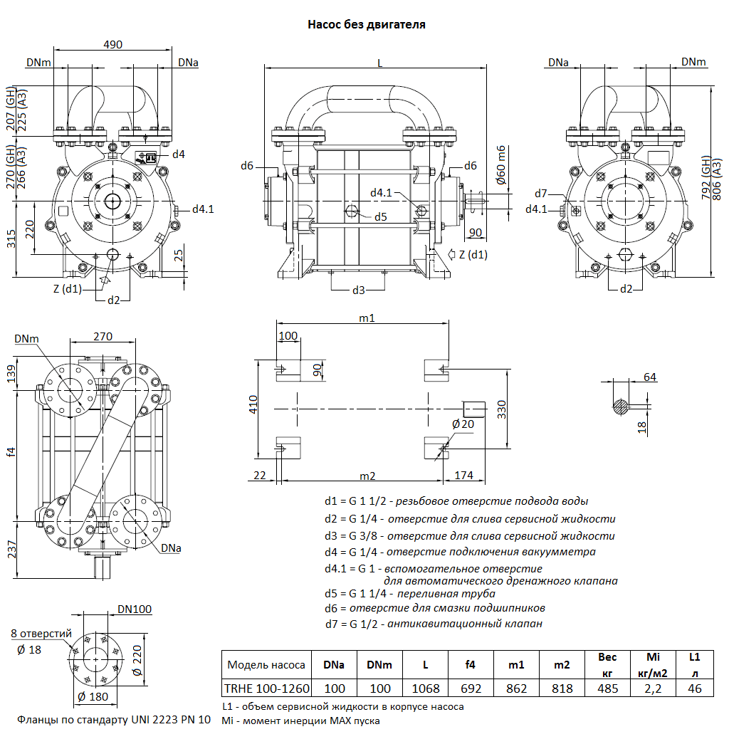
Описание модели TRHE 100-1260 F
Водокольцевой вакуумный насос Pompetravaini TRHE 100-1260 F откачивает закрытые объемы сухих и влажных газов до остаточного вакуума 33 мбар. Это мощный двухступенчатый насос в консольном исполнении. Корпус, проточная часть и рабочие колеса насоса выполнены из чугуна, вал из нержавеющей стали (AISI 420). Патрубки диаметром 100 мм с фланцевым присоединением, выходной патрубок первой камеры соединен манифольдом с входным патрубком второй камеры. Насос производится итальянской компанией Pompetravaini в соответствии с требованиями стандарта ISO 9001.
Производительность насоса до 1260 м3/час, предельный вакуум 33 мбар.
Расход сервисной жидкости 83,3 л/мин. При выключенном насосе внутри остается жидкость в объеме 46 литров.
Насос оснащен трехфазным двигателем 380 В, мощностью 37,0 кВт, 960 оборотов в минуту.
Габаритный чертеж вакуумного насоса Pompetravaini TRHE 100-1260 F
Габаритный чертеж вакуумного насоса Pompetravaini TRHE 100-1260 F
Кривые производительности
У нас пока нет отзывов по этой модели.
В настоящее время никто вопросов не задавал. Вы можете быть первым.




































_1.jpg)




























































































































































































































































Гарантия 12 мес.