Описание модели TRHE 100-870 GH
Водокольцевой вакуумный насос Pompetravaini TRHE 100-870 GH откачивает закрытые объемы сухих и влажных газов до остаточного вакуума 33 мбар. Это мощный двухступенчатый насос в консольном исполнении. Корпус и проточная часть насоса выполнены из чугуна, вал из нержавеющей стали (AISI 420), рабочие колеса из бронзы. Патрубки диаметром 100 мм с фланцевым присоединением, выходной патрубок первой камеры соединен манифольдом с входным патрубком второй камеры. Насос производится итальянской компанией Pompetravaini в соответствии с требованиями стандарта ISO 9001.
Производительность насоса до 870 м3/час, предельный вакуум 33 мбар.
Расход сервисной жидкости 80 л/мин. При выключенном насосе внутри остается жидкость в объеме 35 литров.
Насос оснащен трехфазным двигателем 380 В, мощностью 30,0 кВт, 960 оборотов в минуту.
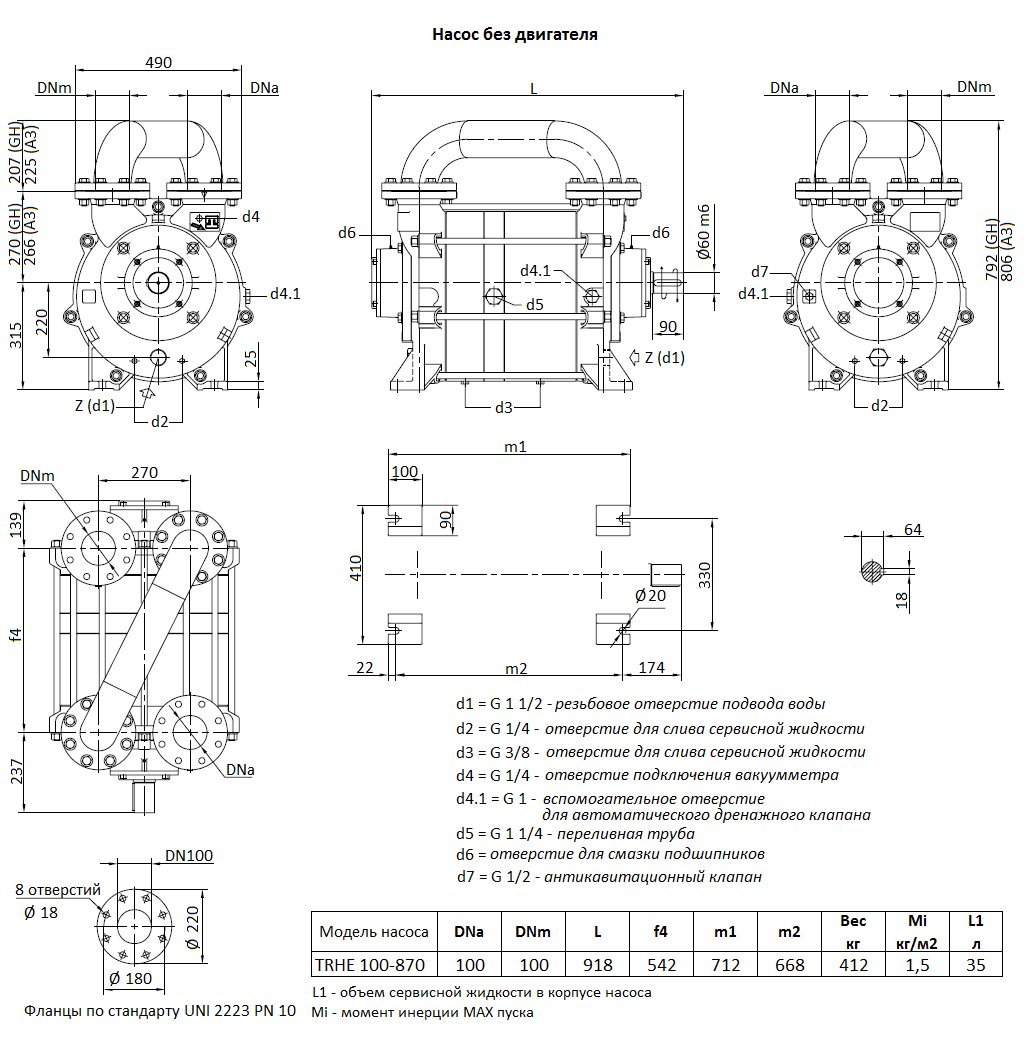
Габаритный чертеж вакуумного насоса Pompetravaini TRHE 100-870 GH
Габаритный чертеж вакуумного насоса Pompetravaini TRHE 100-870 GH
Кривые производительности
У нас пока нет отзывов по этой модели.
В настоящее время никто вопросов не задавал. Вы можете быть первым.




































_1.jpg)




























































































































































































































































Гарантия 12 мес.